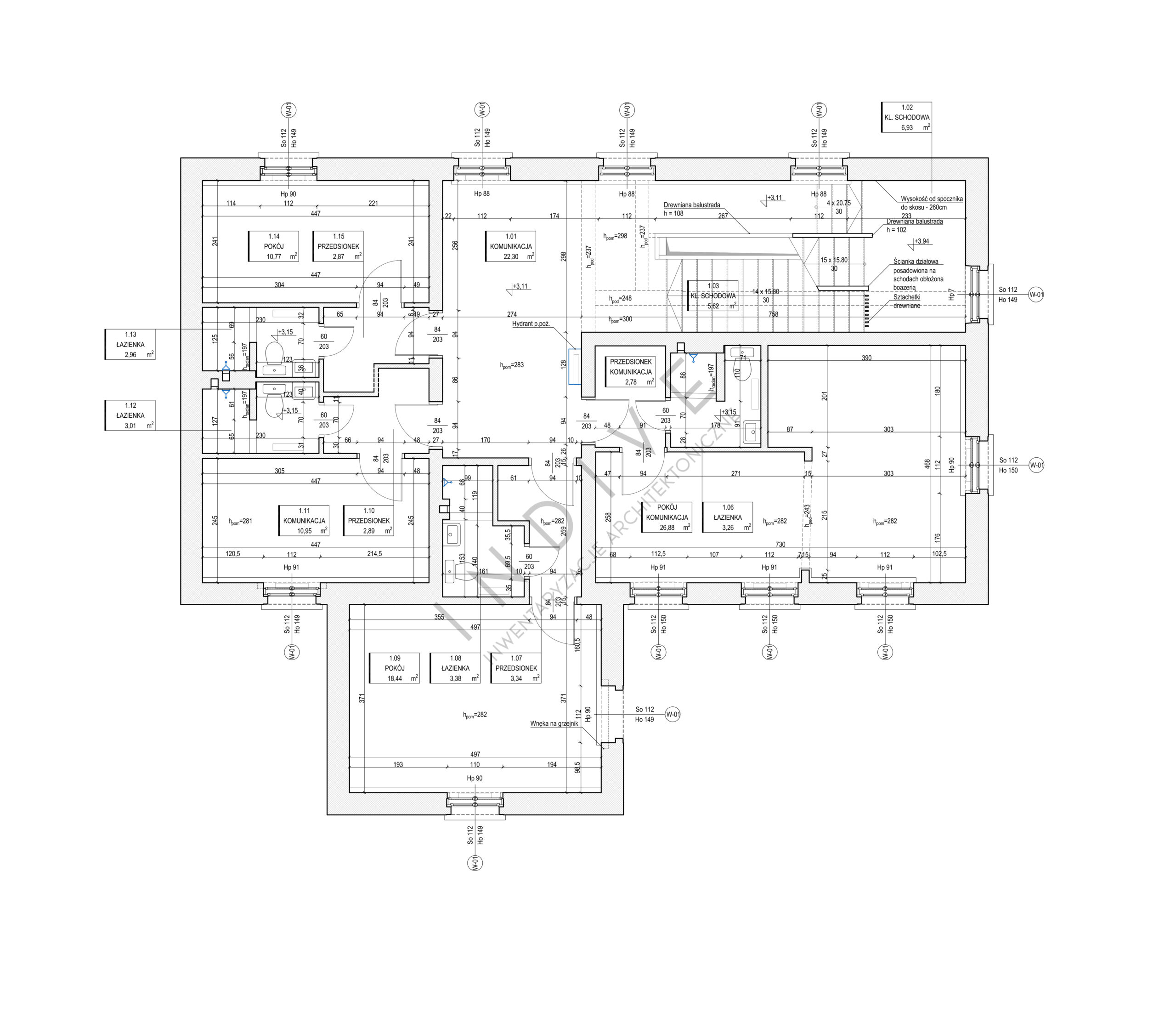
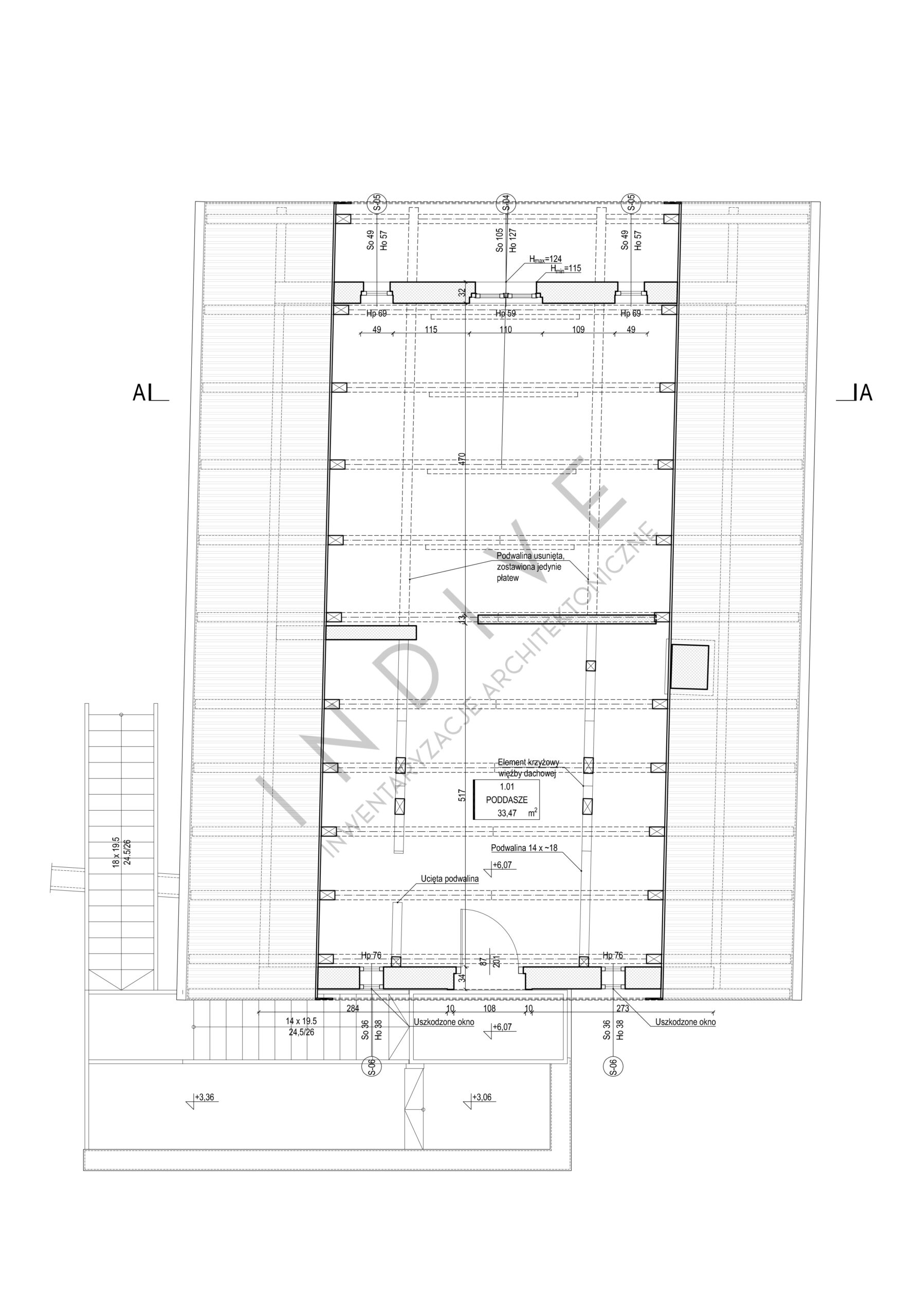
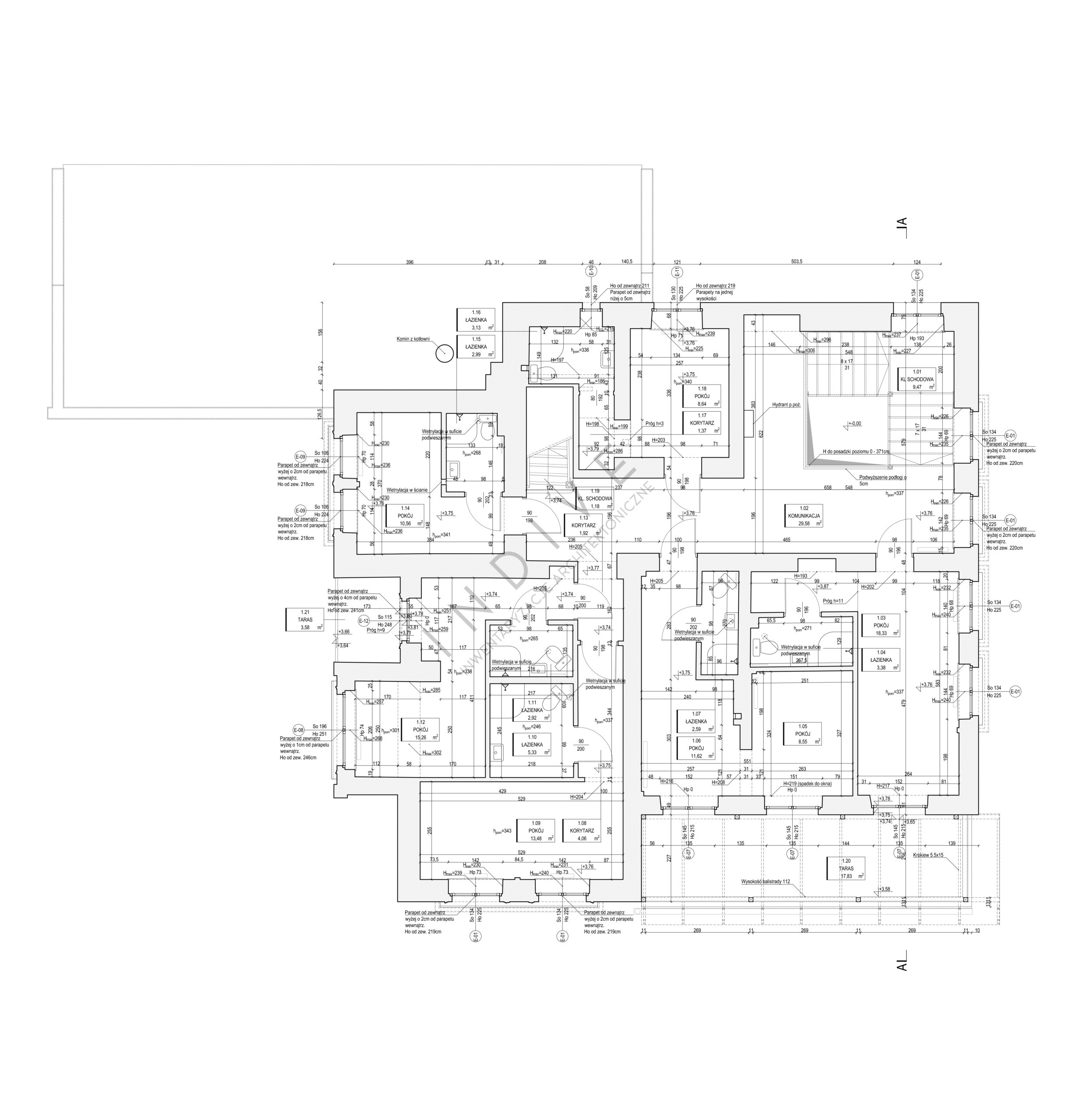
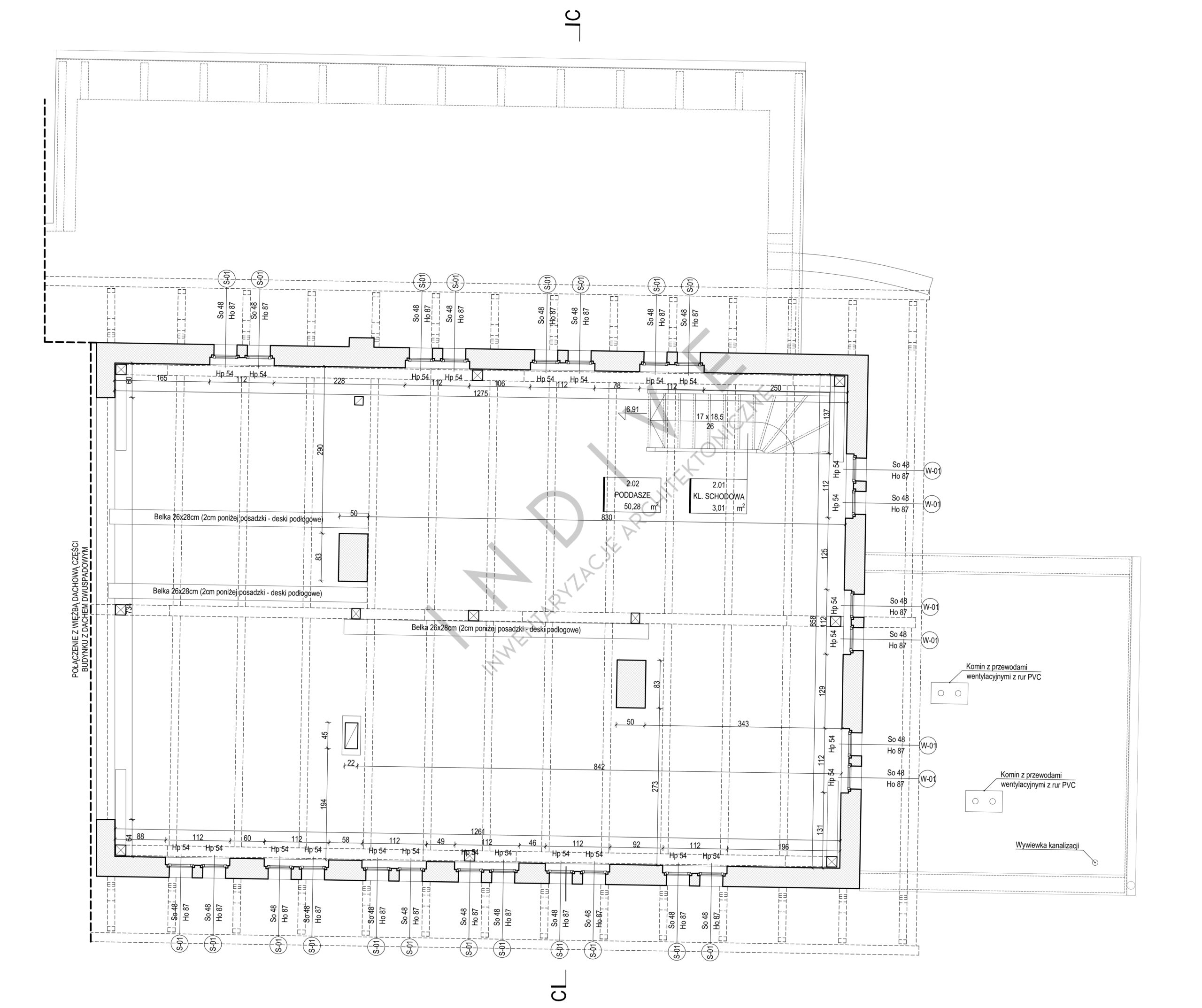
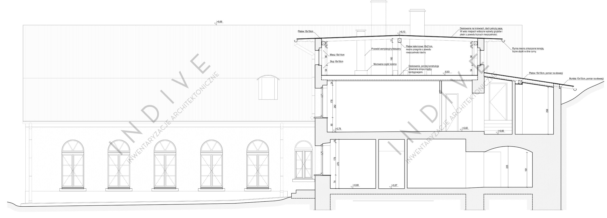
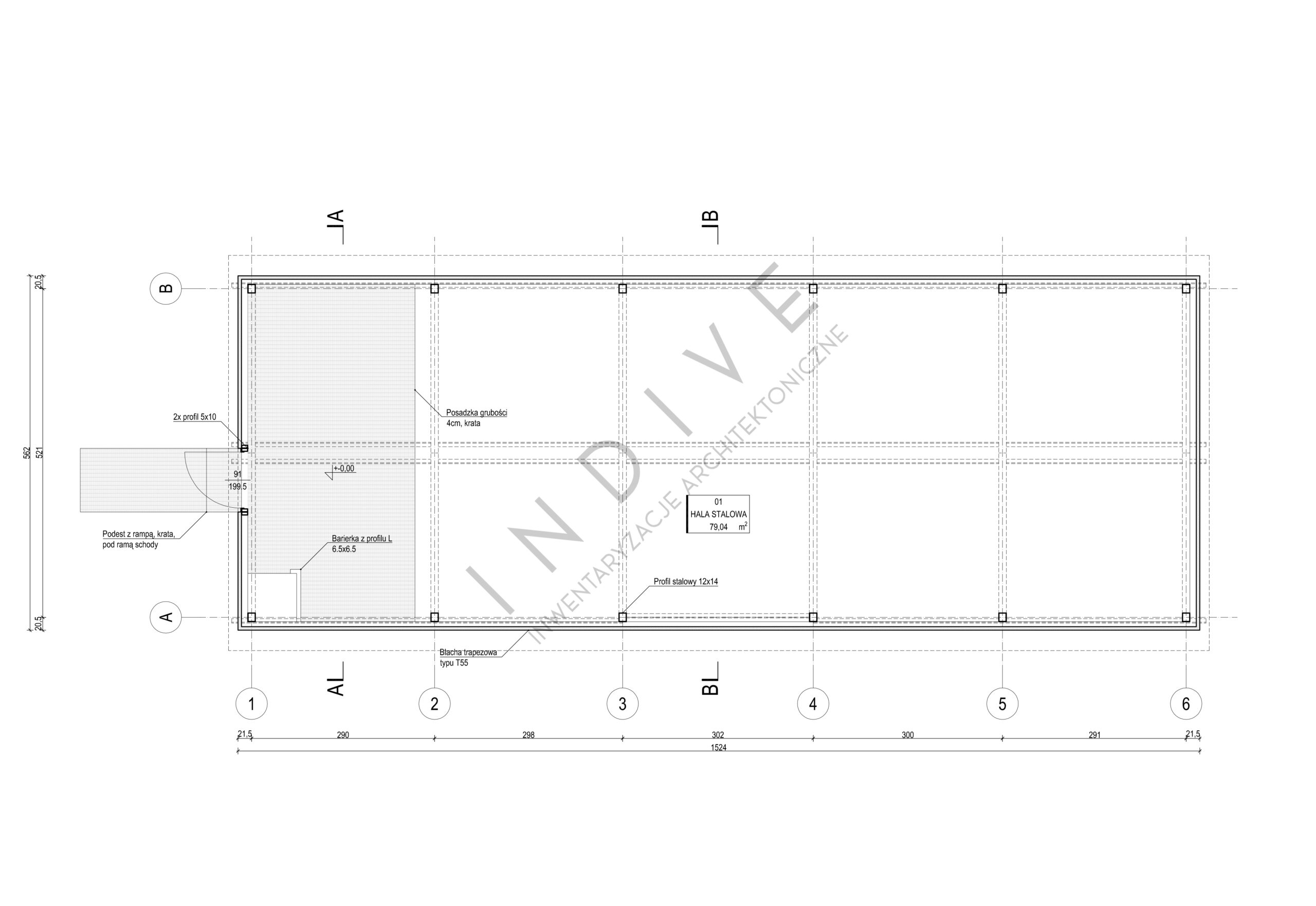
Nazywam się Piotr Szybilski. Od ponad dekady wykonuję inwentaryzacje architektoniczne budynków, inwentaryzacje architektoniczne lokali użytkowych i mieszkalnych, łącząc pasję do architektury z precyzją i profesjonalizmem. Od 2014 roku dostarczam rzetelne dokumentacje pomiarowe, wspierając przede wszyskim pracownie architektoniczne, a także klientów biznesowych i prywatnych inwestorow w realizacji ich wizji. Jako architekt z doświadczeniem wierzę, że dokładność i zaangażowanie to fundamenty każdego udanego projektu.
W moim portfolio znajdują się inwentaryzacje takich obiektów jak:
- Budynki forteczne Twierdzy Modlin.
- Budynki Gazowni Warszawskiej.
- Budynki zabytkowe hotelowe.
- Budynki biurowe, usługowe i handlowe.
- Budynki magazynowe.
- Budynki oświaty.
- Budynki służby zdrowia.
- Budynki administracji publicznej.
- Budynki mieszkalne jednorodzinne.
- Lokale usługowe i mieszkalne.
- Lokale mieszkaniowe.








































